现代化医院的高品质后勤论坛精彩回顾
静脉用药调配中心的建设应符合《药品生产质量管理规范(2010)》和《静脉用药调配中心建设与管理指南》的规定,在加强静脉用药调配中心的建设、装修管理、监测、验收的全过程中以质量为核心,实行全过程的动态管理控制。
国家卫生健康委办公厅于2021年组织制定的《静脉用药调配中心建设与管理指南》已颁布实施,对我国医疗机构静脉药物配置中心的规范化建设、管理、运行,保障院内静脉用药安全将起到积极的推动作用。
静脉用药调配中心(英文Pharmacy intravenous admixture service,简写为PIVAS,以下简称静脉用药调配中心)是医疗机构为患者提供静脉用药集中调配专业技术服务的部门。静脉用药调配中心通过静脉用药处方医嘱审核干预、加药混合调配、参与静脉输液使用评估等药学服务,为临床提供优质可直接静脉输注的成品输液。
对于“普通药品及肠外营养液”在C级(万级)的调配操作间背景下局部A级(百级)的水平层流洁净工作台进行配置。对于“抗生素及危害药品”在C级背景下局部A级的生物安全柜里进行配置。
静脉用药调配中心应符合建设流程的基本要求,包括选址和建筑面积大小

静脉用药调配中心应当设于人员流动少、靠近住院部药房位置相对独立的安静区域,目的是为了方便输液成品的运输与发放,加强与医护人员交流沟通,保证输液成品运送的时效性,最大限度降低静脉用药调配中心遭受污染的风险。
设置地点应远离污水处理站、化粪池、废物处理中转站、噪声干扰严重、易产生花粉的植被、粉尘或者其它可能会对静脉用药调配中心污染的地点,远离码头、机场、铁路等交通要道,从根源上避免对静脉用药调配中心的污染。
洁净区新风口位置应尽量避免选择易污染的区域。新风采集质量会直接影响净化设备使用及维护状况,故应保证新风口周围30米内环境清洁,无污染设施,新风口不能直接面对病房和密集的建筑设施。同时新风口设置距离地面高度不能低于3米,避免静脉用药调配中心空气质量受地面含尘浓度的影响。
静脉用药调配中心整体地面不得低于室外露天地平面,不宜设置在地下室和半地下室等密闭或者半密闭场所。其建设应符合静脉用药调配中心空气洁净度标准,保证有效通风设施,对温度、湿度、照度等严格控制,维护工作人员的身心健康,以免影响输液成品质量,保障临床科室用药安全。
静脉用药调配中心应位于最大频率风向上风侧,或全年最小频率风向的下风测。排风口与采风口设置于建筑物侧面,或将排风口置于采风口下方,其距离不小于3米。
静脉用药调配中心选址应选择人员流动少且工作方便的地点。人流物流通道应设置合理。此外,需考虑电梯承载力及运输过程中污染风险,避免污染和交叉污染。
静脉用药调配中心的建设面积应考虑各医院承担床位数、运营管理及功能定位。同时需与日工作量、病区数量、调配药品类别、配备工勤和专业技术人员数量、配备自动化设备数量(水平层流洁净工作台、生物安全柜)以及医院经济建设规模相适宜。
静脉用药调配中心使用面积与日调配工作量关系如下:
(1)日调配量1000袋以下:不少于300m²
(2)日调配量1001-2000袋:300m2-500m²
(3)日调配量2001~3000袋:500m2-650m²
(4)若日调配量3001袋以上,每增加500袋递增50m²。
具体项目可根据医院的情况进行计算规划,并适当预留一些发展空间。一般需考虑十年以上的使用寿命,并把可预见的业务发展量纳入规范的范围内,以便应对医院业务量的增长。
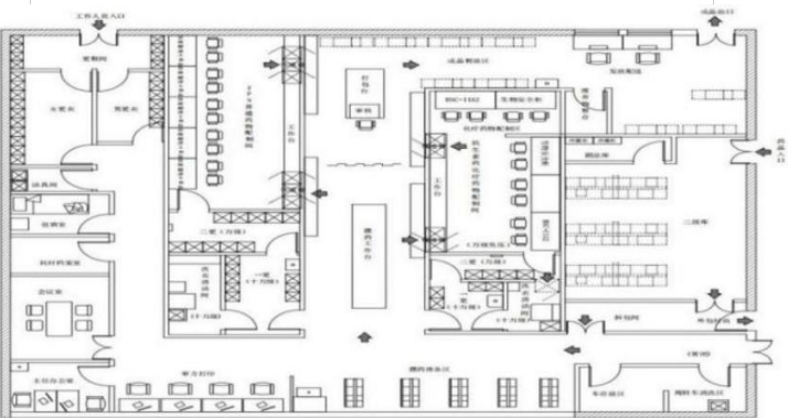
静脉用药调配中心分区应布局合理,防止交叉污染,应设有洁净区、非洁净控制区、辅助工作区三个功能区。
洁净区设一次更衣室、二次更衣室、调配操作间及洗衣洁具间;在洁净室内不设置水池和地漏。
非洁净控制区包括用药医嘱审核、审方打印、摆药准备、成品复核、包装发放及工作台、药架推车、成品复核筐等区域。

辅助工作区应有与之相适应的二级药库、药品与物料贮存、高警示药品有显著标志并单独区域存放,面积充足时可设置办公室、值班室、耗材库、资料室、冷藏库、医护人员休息就餐室、会议室以及空调机房、淋浴室和卫生间。淋浴室及卫生间应设置于静脉用药调配中心外附近区域。
静脉用药调配中心应设置为一个相对独立的区域以便管理,并与医院住院部药房及药品库临近,以方便药品的运输及发放。
合理布局应符合药品调配要求,按照空气洁净度级别要求进行划分, 确保静脉用药在调配过程中不被微生物和不溶性微粒污染,发生交叉污染,是减少医院感染发生的关键因素。
非洁净控制区是确保洁净区洁净度的有效屏障,要单独设立打印间、严格控制人员流动,按标准进行更衣和洗手,减小将污染物带入洁净区的概率。在洁净区与非洁净控制区设除尘垫,摆药区与出入口严格分开,确保静脉药物调配中心洁净度符合要求。辅助工作区的二级库应按照药品的性质进行分类贮存,库房温湿度合理,门与通道的宽度应便于搬运。静脉用药调配中心功能区(室)平面布局及工艺流程参考示例见图
不同等级洁净区之间的缓冲衔接与人流通道及物流通道走向合理,必须设置缓冲室及相应设施,如物理隔断、行为规范、警示标识等,保证各区域净化级别的相对独立。进出洁净区物流通道分开不得交叉。进出洁净区的人员应动作轻,减少不必要的行动。不同洁净级别区域间有防止交叉污染的设施,如换鞋柜、更衣柜、洗手消毒设施等。严格避免静脉用药调配中心流程布局不合理而造成交叉污染。人流与物流进出流程具体如下:
进入洁净区:一次更衣室更换洁净区专用拖鞋、脱工作服、按七步洗手法洗手→进入二更穿洁净隔离服、戴帽子、口罩、无粉灭菌乳胶手套→七步洗手法后手肘部推门进入配制区。
离开洁净区:调配操作间→进入二更(脱手套、帽子、口罩、洁净服)七步洗手法洗手→进入一更(更换工作服、工作鞋)。
药品物流进入调配操作间:药品物流→二级库→拆包装→排药区→经传递窗进入调配操作间。
成品输液出调配操作间:调配成品输液→经传递窗传出→成品复核区域→成品包装→分病区置于专用转运箱→由专人送至各病区护士站→与病房护士清点数目进行交接、双方签名并记录。
各功能区洁净级别标准应符合国家标准:一次更衣室、洁净洗衣洁具间为D级(十万级)、二次更衣室、调配操作间为C级(万级)。洁净
空气检测是影响洁净环境的主要指标。洁净区洁净标准应符合国家相关规定,经检测合格后方可投入使用。通过对洁净区不同洁净级别区域空气进行取样,对单位体积空气中沉降菌、悬浮粒子数量进行监测,以评估该区域的环境质量状况,详见表

沉降菌菌落数要求

摘自:国家卫生健康委.静脉用药调配中心建设与管理指南(2021版)
表面微生物检测用于评估洁净区物品洁净度质量状况,应每月对设施表面水平层流洁净台、生物安全柜、地面、手套、洁净服等物体表面进行一次微生物检测,菌落数指标详见表

菌落数限定值(静态)
摘自:国家卫生健康委.静脉用药调配中心建设与管理指南(2021版)
换气次数要求。一次更衣室、洗衣结具间换气次数≥15次/小时,二次更衣室、调配操作间换气次数≥25次/小时。
洁净区内各功能区的压差控制是保证洁净室洁净度的重要环节。应安装压差计及压差异常报警装置,保证各区域内静压差符合相关规范要求。

抗生素及危害药品洁净区各房间压差梯度:非洁净控制区<一次更衣室<二次更衣室>抗生素及危害药品调配操作间
电解质类等普通输液与肠外营养液洁净区各房间压差梯度:非洁净控制区<一次更衣室<二次更衣室<调配操作间
相邻洁净区域压差5~10Pa;一次更衣室、调配操作间与非洁净控制区之间压差均≥10Pa。各洁净区域气流流向及压差梯度参考示例图如下:

图 压差分配示意图
(a)抗生素及危害药品调配操作间气流流向及压差梯度示意图 (b)普通及肠外营养液调配操作间气流流向及压差示意图
静脉用药调配中心洁净区除安装通风换气设施外,应在适宜位置安装控制面板,显示温度、相对湿度、环境噪声等运行参数设备。
洁净区温度为18℃~26℃,相对湿度为35%~75%;洁净区应有足够的照明度,照明度应大于300Lx;控制周围环境噪声应≤60dB
静脉用药调配中心洁净环境检测参数要求

摘自:国家卫生健康委.静脉用药调配中心建设与管理指南(2021版)
文|洁净园融媒体综合整理、图片来自网络
END
![]()
洁净园 | 为中国建设更安全的医院
★★★★★※※※※※※★★★★★
感染控制|医学检验|平疫结合|干细胞移植
复合手术室|ICU病房|日间手术室|通仓交融手术室|实验室
暖通空调|医疗装备|医疗材料|环保节能
★★★★★※※※※※※★★★★★
PS
商务合作
010-、

版权声明:本文内容由互联网用户自发贡献,该文观点仅代表作者本人。本站仅提供信息存储空间服务,不拥有所有权,不承担相关法律责任。如发现本站有涉嫌侵权/违法违规的内容,请联系我们,一经查实,本站将立刻删除。
如需转载请保留出处:https://51itzy.com/kjqy/145950.html